ヒーリンググレース高槻高西町B棟 高槻市高西町[アパート]

ヒーリンググレース高槻高西町B棟 高槻市高西町[アパート]

アパート[高槻市高西町]

大阪市西区で賃貸マンションを探すなら住むーズ!

  • お客様専用:0120-3215-86
  • 9:00~21:30 TEL:06-6531-3215

物件詳細

ヒーリンググレース高槻高西町B棟 高槻市高西町[アパート]

ヒーリンググレース高槻高西町B棟 高槻市高西町[アパート] の物件詳細ページです。

物件種別: アパート

お問い合わせ番号:hphp0000385009

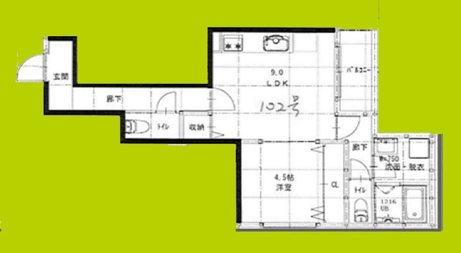
間取り(面積)

1LDK

( 40.99㎡ )

賃料(管理費等)

10.8万円

( 5800円 )

交通: 阪急京都線 高槻市駅 徒歩18分

敷金/礼金: - / 2ヶ月

保証金/敷引/償却金: - / - / -

所在地: 高槻市高西町

築年月: 完成予定
2026年4月

ポイント

《初期費用減額プラン有・保証人不要物件》

問い合わせ(無料)

TEL: 06-6531-3215

お問い合わせ番号: hphp0000385009

QRコード

資料請求などはこちら

問い合わせ(無料)

TEL: 06-6531-3215

お問い合わせ番号: hphp0000385009

スタッフからのコメント

2026年4月完成予定新築物件。浴室乾燥機付き設備充実。新生活が幸せであふれるようなご提案を心がけております。初期費用クレジット決済可能物件。お部屋探しのことなら住むーズ 堀江店まで。

セールスポイント

特徴 陽当たり良好,眺望良好,通風良好,保証人(不要),カード決済可(入居時費用)
設備 敷地内ゴミ置き場,ガスコンロ設置済,2口コンロ,バス・トイレ別,バス有,浴室乾燥,脱衣所,シャワー,トイレ有,温水洗浄便座,洗面所独立,洗面化粧台,エアコン,BS,CS,CATV,高速ネット対応,CATVインターネット,TVインターホン,フローリング,室内洗濯機置場,クローゼット,シューズボックス,ガス(都市ガス),下水(公共下水),水道(公営),電気
天井高 空調 1基
駐車場 駐輪場:有 バイク置き場:有
周辺施設 ホームセンター:ホームセンターコーナン 高槻城西店 755m
郵便局:高槻城内郵便局 910m
レストラン:なか卯 高槻津之江店 1295m
スーパー:万代 高槻春日店 1356m
コンビニ:セブンイレブン 高槻城東町店 1535m
レストラン:天下一品 高槻八丁畷店 1457m
コンビニ:ローソン 高槻京口町店 1672m
ショッピング施設:ミング・阪急高槻 1661m
銀行:りそな銀行 高槻支店 1657m
ショッピング施設:グリーンプラザたかつき1号館 1840m

物件概要

物件名 ヒーリンググレース高槻高西町B棟
物件所在地 大阪府高槻市高西町
交通機関 阪急京都線 高槻市駅 徒歩18分
東海道・山陽本線 高槻駅 徒歩22分
専有面積 40.99㎡
所在階/地上階数 1 / 3 部屋向き
建物構造 木造 築年月 完成予定
2026年4月
賃料 10.8万円 管理費等 5800円
敷金 - 礼金 2ヶ月
保証金 - 更新料
積増し敷金 - 積増し理由
その他月次費用 インターネット使用料:1,200円
損害保険 有 料金:8000円 損保期間:12ヶ月 
契約形態 普通借家契約 期間 契約期間:2年
保証会社 必須 エルズ 初回保証料:総賃料の50% 保証人代行 必須
法人契約
現況 未完成 入居時期 期日指定 2026年4月中旬
入居条件 ペット(不可),事務所(相談),楽器等の使用(不可),学生(可),性別(不問),子供(相談),単身(可),二人(相談),高齢者(相談),法人(可),飲食店(不可),ルームシェア(相談)
IT重説

その他

取引態様 仲介元付(一般) 自社管理番号 hphp0000385009
情報更新日 2026年2月25日 次回更新予定日 2026年3月11日
不動産会社コード 2105765 物件管理コード 1111846758050000391907
  • ※間取りの「S」はサービスルーム(納戸)です。
  • ※QRコードは(株)デンソーウェーブの登録商標です。

資料請求などはこちら

問い合わせ(無料)

TEL: 06-6531-3215

お問い合わせ番号: hphp0000385009

お問い合わせ先:株式会社谷山企画 住む→ズ 四ツ橋堀江店

所在地 : 大阪府大阪市西区北堀江1丁目2-17四ツ橋川崎ビル6F-EAST
TEL : 06-6531-3215
免許番号 : 大阪府知事(2)第58352号
加盟団体 : 大阪府宅地建物取引業協会

この部屋を見学予約

ホームへ戻る