レオンヴァリエ長堀通 大阪市東成区大今里西[マンション]

レオンヴァリエ長堀通 大阪市東成区大今里西[マンション]

マンション[大阪市東成区大今里西]

大阪市西区で賃貸マンションを探すなら住むーズ!

  • お客様専用:0120-3215-86
  • 9:00~21:30 TEL:06-6531-3215

物件詳細

レオンヴァリエ長堀通 大阪市東成区大今里西[マンション]

レオンヴァリエ長堀通 大阪市東成区大今里西[マンション] の物件詳細ページです。

物件種別: マンション

お問い合わせ番号:hphp0000384825

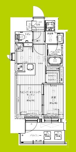
間取り(面積)

1LDK

( 32.36㎡ )

賃料(管理費等)

10.17万円

( 11350円 )

交通: 大阪環状線 玉造駅 徒歩9分

敷金/礼金: - / 1ヶ月

保証金/敷引/償却金: - / - / -

所在地: 大阪市東成区大今里西

築年月: 完成予定
2026年1月

ポイント

《初期費用減額プラン有物件》

問い合わせ(無料)

TEL: 06-6531-3215

お問い合わせ番号: hphp0000384825

QRコード

資料請求などはこちら

問い合わせ(無料)

TEL: 06-6531-3215

お問い合わせ番号: hphp0000384825

スタッフからのコメント

2026年1月完成予定新築物件。設備充実。嬉しいインターネット無料。新生活が幸せであふれるようなご提案を心がけております。初期費用クレジット決済可能物件。お部屋探しのことなら住むーズ 堀江店まで。

セールスポイント

特徴 防犯カメラ,オートロック,陽当たり良好,眺望良好,通風良好,保証人(要),カード決済可(入居時費用)
設備 エレベーター,24時間ゴミ出し可,敷地内ゴミ置き場,宅配BOX,ガスコンロ設置済,2口コンロ,バス・トイレ別,バス有,浴室乾燥,脱衣所,シャワー,トイレ有,温水洗浄便座,洗面所独立,洗面化粧台,エアコン,BS,CS,CATV,高速ネット対応,CATVインターネット,ネット使用料不要,TVインターホン,フローリング,室内洗濯機置場,クローゼット,ウォークインクローゼット,シューズボックス,ガス(都市ガス),下水(公共下水),水道(公営),電気
光ファイバー エレベーター 1基
天井高 空調 1基
駐車場 駐輪場:有 バイク置き場:有
周辺施設 スーパー:業務スーパー 今里店 107m
役所:大阪市東成区役所 301m
警察署・交番:東成警察署 368m
スーパー:阪急OASIS(阪急オアシス) 今里店 500m
コンビニ:セブンイレブン 大阪玉津2丁目店 596m
レストラン:松屋 今里店 577m
コンビニ:ローソン 玉津二丁目店 751m
ショッピング施設:VIERRA TOWN(ビエラタウン) 玉造 739m
総合病院:こすぎ内科クリニック 771m
ホームセンター:ロイヤルホームセンター森ノ宮店 1057m

物件概要

物件名 レオンヴァリエ長堀通
物件所在地 大阪府大阪市東成区大今里西2丁目
交通機関 大阪環状線 玉造駅 徒歩9分
大阪メトロ長堀鶴見緑地線 玉造駅 徒歩10分
専有面積 32.36㎡
所在階/地上階数 7 / 13 部屋向き
建物構造 鉄筋コンクリート 築年月 完成予定
2026年1月
賃料 10.17万円 管理費等 11350円
敷金 - 礼金 1ヶ月
保証金 - 更新料
積増し敷金 - 積増し理由
その他月次費用 mamorocca:300円
損害保険 有 料金:20000円 損保期間:24ヶ月 
契約形態 普通借家契約 期間 契約期間:1年
保証会社 必須 日本プレミアム 初回保証料:総賃料の55% 保証人代行 必須
法人契約
現況 未完成 入居時期 期日指定 2026年2月11日
入居条件 ペット(相談),事務所(不可),楽器等の使用(不可),学生(可),性別(不問),子供(相談),単身(可),二人(相談),高齢者(相談),法人(可),飲食店(不可),ルームシェア(不可)
IT重説

その他

取引態様 仲介元付(一般) 自社管理番号 hphp0000384825
情報更新日 2026年1月13日 次回更新予定日 2026年1月27日
不動産会社コード 2105765 物件管理コード 1111846758050000391723
  • ※間取りの「S」はサービスルーム(納戸)です。
  • ※QRコードは(株)デンソーウェーブの登録商標です。

資料請求などはこちら

問い合わせ(無料)

TEL: 06-6531-3215

お問い合わせ番号: hphp0000384825

お問い合わせ先:株式会社谷山企画 住む→ズ 四ツ橋堀江店

所在地 : 大阪府大阪市西区北堀江1丁目2-17四ツ橋川崎ビル6F-EAST
TEL : 06-6531-3215
免許番号 : 大阪府知事(2)第58352号
加盟団体 : 大阪府宅地建物取引業協会

この部屋を見学予約

ホームへ戻る