レオパレスリゲル 富田林市青葉丘[アパート]

レオパレスリゲル 富田林市青葉丘[アパート]

アパート[富田林市青葉丘]

大阪市西区で賃貸マンションを探すなら住むーズ!

  • お客様専用:0120-3215-86
  • 9:00~21:30 TEL:06-6531-3215

物件詳細

レオパレスリゲル 富田林市青葉丘[アパート]

レオパレスリゲル 富田林市青葉丘[アパート] の物件詳細ページです。

物件種別: アパート

お問い合わせ番号:hphp0000376866

間取り(面積)

1K

( 23.18㎡ )

賃料(管理費等)

4.7万円

( 5000円 )

交通: 南海高野線 大阪狭山市駅 徒歩10分

敷金/礼金: - / -

保証金/敷引/償却金: - / - / -

所在地: 富田林市青葉丘

築年月: 2010年3月

ポイント

《敷金・礼金0円物件・保証人不要物件多数取扱いあり》

問い合わせ(無料)

TEL: 06-6531-3215

お問い合わせ番号: hphp0000376866

QRコード

資料請求などはこちら

問い合わせ(無料)

TEL: 06-6531-3215

お問い合わせ番号: hphp0000376866

スタッフからのコメント

敷金・礼金0円、保証人無しプラン、生活保護の方もOKの物件を多数取り揃えております。初期費用のクレッジット払いも可能となっております!お部屋を借りるなら住むーズまで。

セールスポイント

特徴 防犯カメラ,フリーレント,カード決済可(入居時費用)
設備 電気コンロ,バス・トイレ別,浴室乾燥,温水洗浄便座,エアコン,家電付,家具付,TVインターホン,給湯,室内洗濯機置場
天井高 空調 1基
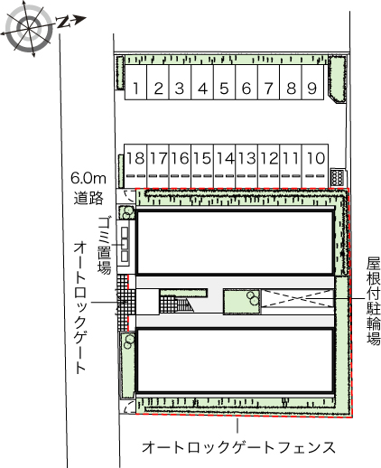
駐車場 駐車場:有(敷地内) 9900円/月~ 駐車可能台数(5台以上) 駐輪場:有

物件概要

物件名 レオパレスリゲル
物件所在地 大阪府富田林市青葉丘 周辺地図
交通機関 南海高野線 大阪狭山市駅 徒歩10分
南海高野線 金剛駅 徒歩19分
専有面積 23.18㎡
所在階/地上階数 1 / 2 部屋向き 西
建物構造 木造 築年月 2010年3月
総戸数 28
賃料 4.7万円 管理費等 5000円
保証金 - 更新料 16,500円
積増し敷金 - 積増し理由
その他一時金 室内清掃費用:41,800円 その他費用
損害保険 有 料金:26680円 損保期間:24ヶ月 
契約形態 普通借家契約 期間 契約期間:2年
保証会社 必須 保証会社の利用:利用料の100%~120% 保証人代行 必須
現況 居住中 入居時期 期日指定 2026年1月中旬
IT重説

その他

取引態様 仲介先物 自社管理番号 hphp0000376866
情報更新日 2025年12月2日 次回更新予定日 2025年12月16日
不動産会社コード 2105765 物件管理コード 1111846758050000383765
  • ※間取りの「S」はサービスルーム(納戸)です。
  • ※QRコードは(株)デンソーウェーブの登録商標です。

資料請求などはこちら

問い合わせ(無料)

TEL: 06-6531-3215

お問い合わせ番号: hphp0000376866

お問い合わせ先:株式会社谷山企画 住む→ズ 四ツ橋堀江店

所在地 : 大阪府大阪市西区北堀江1丁目2-17四ツ橋川崎ビル6F-EAST
TEL : 06-6531-3215
免許番号 : 大阪府知事(2)第58352号
加盟団体 : 大阪府宅地建物取引業協会

この部屋を見学予約

ホームへ戻る