Park Lane Kujo 大阪市西区九条[マンション]

Park Lane Kujo 大阪市西区九条[マンション]

マンション[大阪市西区九条]

大阪市西区で賃貸マンションを探すなら住むーズ!

  • お客様専用:0120-3215-86
  • 9:00~21:30 TEL:06-6531-3215

物件詳細

Park Lane Kujo 大阪市西区九条[マンション]

Park Lane Kujo 大阪市西区九条[マンション] の物件詳細ページです。

物件種別: マンション

お問い合わせ番号:hphp0000375721

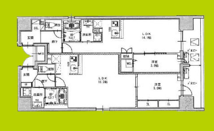
間取り(面積)

1LDK

( 46.23㎡ )

賃料(管理費等)

14.95万円

( 10000円 )

交通: 阪神なんば線 九条(大阪)駅 徒歩2分

敷金/礼金: 1ヶ月 / -

保証金/敷引/償却金: - / - / -

所在地: 大阪市西区九条

築年月: 完成予定
2026年1月

ポイント

《初期費用減額プラン有物件》

問い合わせ(無料)

TEL: 06-6531-3215

お問い合わせ番号: hphp0000375721

QRコード

資料請求などはこちら

問い合わせ(無料)

TEL: 06-6531-3215

お問い合わせ番号: hphp0000375721

スタッフからのコメント

2026年1月完成予定新築物件。設備充実。嬉しいインターネット無料。新生活が幸せであふれるようなご提案を心がけております。初期費用クレジット決済可能物件。お部屋探しのことなら住むーズ 堀江店まで。

セールスポイント

特徴 陽当たり良好,眺望良好,通風良好,保証人(不要),カード決済可(入居時費用)
設備 エレベーター,24時間ゴミ出し可,敷地内ゴミ置き場,ガスコンロ設置済,2口コンロ,バス・トイレ別,バス有,浴室乾燥,脱衣所,シャワー,トイレ有,温水洗浄便座,洗面所独立,洗面化粧台,エアコン,BS,CS,CATV,高速ネット対応,CATVインターネット,ネット使用料不要,フローリング,室内洗濯機置場,クローゼット,ウォークインクローゼット,シューズボックス,ガス(都市ガス),下水(公共下水),水道(公営),電気
光ファイバー エレベーター 1基
天井高 空調 1基
駐車場 駐輪場:有 バイク置き場:有
周辺施設 レストラン:THE炭-ズ 九条店 174m
コンビニ:セブンイレブン 大阪ナインモール九条店 167m
スーパー:ザ・ダイソー 大阪ナインモール九条店 241m
ドラッグストア:マツモトキヨシ九条店 205m
スーパー:スーパー玉出 九条店 350m
コンビニ:ファミリーマート 九条店 376m
郵便局:大阪九条郵便局 348m
総合病院:九間クリニック 407m
ショッピング施設:イオンモール大阪ドームシティ 483m
ショッピング施設:フォレオ大阪ドームシティ 634m

物件概要

物件名 Park Lane Kujo
物件所在地 大阪府大阪市西区九条1丁目
交通機関 阪神なんば線 九条(大阪)駅 徒歩2分
専有面積 46.23㎡
所在階/地上階数 5 / 14 部屋向き
建物構造 鉄筋コンクリート 築年月 完成予定
2026年1月
賃料 14.95万円 管理費等 10000円
敷金 1ヶ月 礼金 -
保証金 - 更新料
積増し敷金 - 積増し理由
その他一時金 ハウスクリーニング代:44,000円 その他費用
損害保険 有 料金:20000円 損保期間:24ヶ月 
契約形態 普通借家契約 期間 契約期間:2年
保証会社 必須 (日本セーフティー) 初回保証料:総賃料の40% 保証人代行 必須
法人契約
現況 未完成 入居時期 期日指定 2026年1月下旬
入居条件 ペット(不可),事務所(相談),楽器等の使用(不可),学生(可),性別(不問),子供(相談),単身(可),二人(相談),高齢者(相談),法人(可),飲食店(不可),ルームシェア(相談)
IT重説

その他

取引態様 仲介元付(一般) 自社管理番号 hphp0000375721
情報更新日 2026年1月14日 次回更新予定日 2026年1月28日
不動産会社コード 2105765 物件管理コード 1111846758050000382621
  • ※間取りの「S」はサービスルーム(納戸)です。
  • ※QRコードは(株)デンソーウェーブの登録商標です。

資料請求などはこちら

問い合わせ(無料)

TEL: 06-6531-3215

お問い合わせ番号: hphp0000375721

お問い合わせ先:株式会社谷山企画 住む→ズ 四ツ橋堀江店

所在地 : 大阪府大阪市西区北堀江1丁目2-17四ツ橋川崎ビル6F-EAST
TEL : 06-6531-3215
免許番号 : 大阪府知事(2)第58352号
加盟団体 : 大阪府宅地建物取引業協会

この部屋を見学予約

ホームへ戻る