ファーストフィオーレ北大阪リアン 大阪市東淀川区小松[マンション]

ファーストフィオーレ北大阪リアン 大阪市東淀川区小松[マンション]

マンション[大阪市東淀川区小松]

大阪市西区で賃貸マンションを探すなら住むーズ!

  • お客様専用:0120-3215-86
  • 9:00~21:30 TEL:06-6531-3215

物件詳細

ファーストフィオーレ北大阪リアン 大阪市東淀川区小松[マンション]

ファーストフィオーレ北大阪リアン 大阪市東淀川区小松[マンション] の物件詳細ページです。

物件種別: マンション

お問い合わせ番号:hphp0000368505

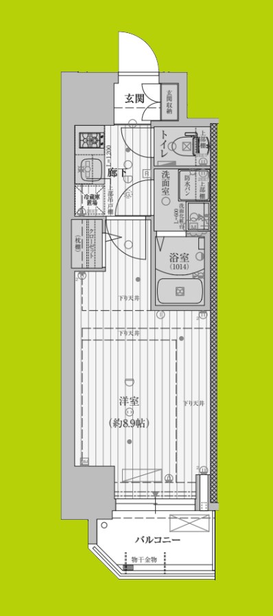
間取り(面積)

1K

( 26.25㎡ )

賃料(管理費等)

7.22万円

( 6300円 )

交通: 阪急京都線 上新庄駅 徒歩3分

敷金/礼金: - / 1ヶ月

保証金/敷引/償却金: - / - / -

所在地: 大阪市東淀川区小松

築年月: 新築
2025年10月

ポイント

《初期費用減額プラン有・保証人不要物件》

問い合わせ(無料)

TEL: 06-6531-3215

お問い合わせ番号: hphp0000368505

QRコード

資料請求などはこちら

問い合わせ(無料)

TEL: 06-6531-3215

お問い合わせ番号: hphp0000368505

スタッフからのコメント

2025年10月完成予定新築物件。設備充実。嬉しいインターネット無料。新生活が幸せであふれるようなご提案を心がけております。初期費用クレジット決済可能物件。お部屋探しのことなら住むーズ 堀江店まで。

セールスポイント

特徴 防犯カメラ,オートロック,モニタ付オートロック,陽当たり良好,眺望良好,通風良好,保証人(要),カード決済可(入居時費用)
設備 エレベーター,24時間ゴミ出し可,敷地内ゴミ置き場,宅配BOX,ガスコンロ設置済,2口コンロ,バス・トイレ別,バス有,浴室乾燥,脱衣所,シャワー,トイレ有,温水洗浄便座,洗面所独立,洗面化粧台,シャワー付洗面台,エアコン,BS,CS,CATV,高速ネット対応,CATVインターネット,ネット使用料不要,TVインターホン,フローリング,室内洗濯機置場,クローゼット,シューズボックス,ガス(都市ガス),下水(公共下水),水道(公営),電気
光ファイバー エレベーター 1基
天井高 空調 1基
駐車場 駐輪場:有 バイク置き場:有
周辺施設 コンビニ:セブンイレブン 大阪小松2丁目店 140m
ドラッグストア:ありた薬局 200m
スーパー:関西スーパー 瑞光店 295m
公園:瑞光寺公園 505m
スーパー:業務スーパー 上新庄店 598m
総合病院:白山病院 814m
レストラン:横浜家系ラーメン 村西家 820m
ショッピング施設:かみしんプラザ 766m
郵便局:東淀川相川郵便局 1045m
コンビニ:ローソンストア100 東淀川小松店 57m

物件概要

物件名 ファーストフィオーレ北大阪リアン
物件所在地 大阪府大阪市東淀川区小松1丁目
交通機関 阪急京都線 上新庄駅 徒歩3分
大阪メトロ今里筋線 瑞光四丁目駅 徒歩13分
専有面積 26.25㎡
所在階/地上階数 3 / 15 部屋向き
建物構造 鉄筋コンクリート 築年月 新築
2025年10月
賃料 7.22万円 管理費等 6300円
敷金 - 礼金 1ヶ月
保証金 - 更新料
積増し敷金 - 積増し理由
その他一時金 ルームクリーニング費用:22,000円 その他費用
損害保険 有 料金:16000円 損保期間:24ヶ月 
契約形態 普通借家契約 期間 契約期間:2年
保証会社 必須 エポス 初回保証料:総賃料の25% 保証人代行 必須
法人契約
現況 未完成 入居時期 期日指定 2025年10月下旬
入居条件 ペット(不可),事務所(相談),楽器等の使用(不可),学生(可),性別(不問),子供(相談),単身(可),二人(相談),高齢者(相談),法人(可),飲食店(不可),ルームシェア(相談)
IT重説

その他

取引態様 仲介元付(一般) 自社管理番号 hphp0000368505
情報更新日 2025年10月28日 次回更新予定日 2025年11月11日
不動産会社コード 2105765 物件管理コード 1111846758050000375411
  • ※間取りの「S」はサービスルーム(納戸)です。
  • ※QRコードは(株)デンソーウェーブの登録商標です。

資料請求などはこちら

問い合わせ(無料)

TEL: 06-6531-3215

お問い合わせ番号: hphp0000368505

お問い合わせ先:株式会社谷山企画 住む→ズ 四ツ橋堀江店

所在地 : 大阪府大阪市西区北堀江1丁目2-17四ツ橋川崎ビル6F-EAST
TEL : 06-6531-3215
免許番号 : 大阪府知事(2)第58352号
加盟団体 : 大阪府宅地建物取引業協会

この部屋を見学予約

ホームへ戻る