ミランダパームコート 大阪市東淀川区大道南[アパート]

ミランダパームコート 大阪市東淀川区大道南[アパート]

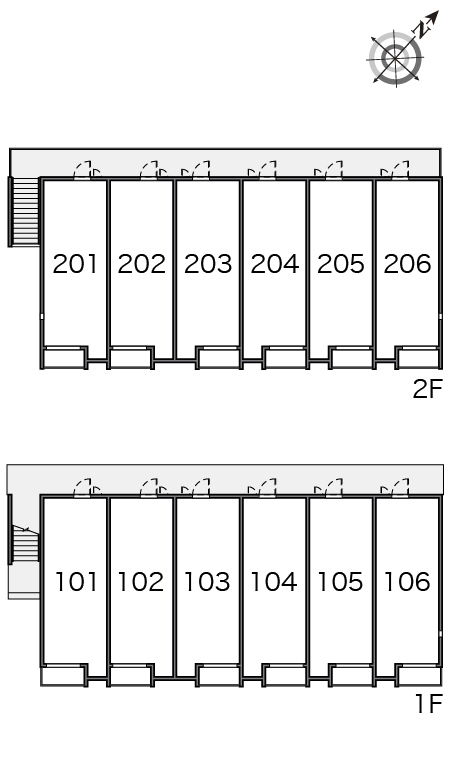
アパート[大阪市東淀川区大道南]

大阪市西区で賃貸マンションを探すなら住むーズ!

  • お客様専用:0120-3215-86
  • 9:00~21:30 TEL:06-6531-3215

物件詳細

ミランダパームコート 大阪市東淀川区大道南[アパート]

ミランダパームコート 大阪市東淀川区大道南[アパート] の物件詳細ページです。

物件種別: アパート

お問い合わせ番号:hphp0000357981

間取り(面積)

1R

( 26.5㎡ )

賃料(管理費等)

7.0万円

( 5500円 )

交通: 大阪メトロ今里筋線 だいどう豊里駅 徒歩9分

敷金/礼金: - / 1ヶ月

保証金/敷引/償却金: - / - / -

所在地: 大阪市東淀川区大道南

築年月: 2016年11月

ポイント

エアコン/TVインターホン/洗面所独立とステキな設備もバッチリです 防犯カメラを備えており充実した設備で一人暮らしでも安心なお部屋です 築8年 木造 1R ステキな物件のご紹介はこちら。株式会社谷山企画が安心のお部屋探しをサポートします。1Rタイプ 2F以上の暮らしやすい物件ですよ 大阪メトロ谷町線 太子橋今市駅徒歩18分の物件情報です。

問い合わせ(無料)

TEL: 06-6531-3215

お問い合わせ番号: hphp0000357981

QRコード

資料請求などはこちら

問い合わせ(無料)

TEL: 06-6531-3215

お問い合わせ番号: hphp0000357981

スタッフからのコメント

便利なエアコン/TVインターホン/洗面所独立/浴室乾燥/バス・トイレ別が設置されています 株式会社谷山企画が快適なお部屋探しを徹底サポートします。防犯カメラ 防犯対策もバッチリですよ 築8年のステキな物件の紹介はこちら。1Rタイプ/26.50㎡/2F以上の便利な物件で快適に暮らしませんか 大阪メトロ谷町線 太子橋今市駅徒歩18分の物件情報のご紹介です。

セールスポイント

特徴 防犯カメラ,2F以上
設備 電気コンロ,バス・トイレ別,浴室乾燥,温水洗浄便座,洗面所独立,エアコン,家電付,家具付,TVインターホン,給湯,室内洗濯機置場
天井高 空調 1基
部屋外設備 バルコニー
駐車場 駐輪場:有

物件概要

物件名 ミランダパームコート
物件所在地 大阪府大阪市東淀川区大道南1丁目
交通機関 大阪メトロ今里筋線 だいどう豊里駅 徒歩9分
大阪メトロ谷町線 太子橋今市駅 徒歩18分
専有面積 26.5㎡
所在階/地上階数 2 / 2 部屋向き 南東
建物構造 木造 築年月 2016年11月
総戸数 12
賃料 7.0万円 管理費等 5500円
敷金 - 礼金 1ヶ月
保証金 - 更新料 16,500円
積増し敷金 - 積増し理由
その他一時金 室内清掃費用:41,800円 その他費用
損害保険 有 料金:26680円 損保期間:24ヶ月 
契約形態 普通借家契約 期間 契約期間:2年
保証会社 必須 保証会社の利用:利用料の100%~120% 保証人代行 必須
現況 入居時期 即時 

その他

取引態様 仲介先物 自社管理番号 hphp0000357981
情報更新日 2025年11月21日 次回更新予定日 2025年12月5日
不動産会社コード 2105765 物件管理コード 1111846758050000364888
  • ※間取りの「S」はサービスルーム(納戸)です。
  • ※QRコードは(株)デンソーウェーブの登録商標です。

資料請求などはこちら

問い合わせ(無料)

TEL: 06-6531-3215

お問い合わせ番号: hphp0000357981

お問い合わせ先:株式会社谷山企画 住む→ズ 四ツ橋堀江店

所在地 : 大阪府大阪市西区北堀江1丁目2-17四ツ橋川崎ビル6F-EAST
TEL : 06-6531-3215
免許番号 : 大阪府知事(2)第58352号
加盟団体 : 大阪府宅地建物取引業協会

この部屋を見学予約

ホームへ戻る