物件詳細
プレジオ宝塚ASIAN 宝塚市平井[マンション]
物件詳細
プレジオ宝塚ASIAN 宝塚市平井[マンション] の物件詳細ページです。
お問い合わせ番号:hphp0000346857
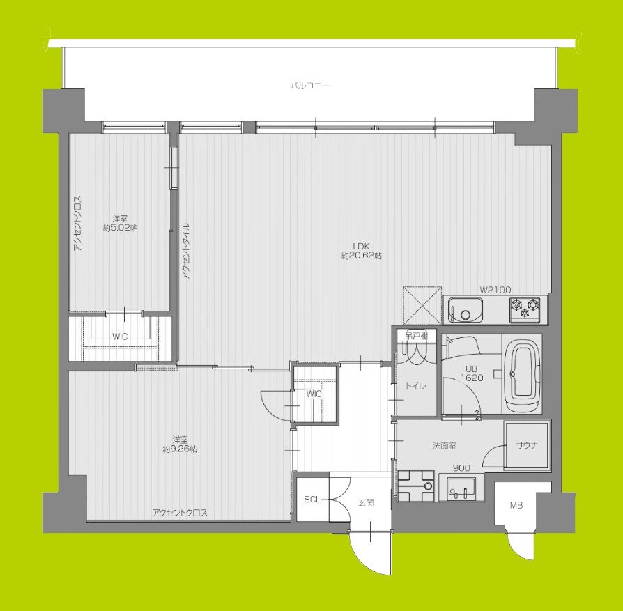
2LDK
( 78.4㎡ )
21.2万円
( 25000円 )
交通: 阪急宝塚線 山本(兵庫)駅 徒歩7分
敷金/礼金: - / -
保証金/敷引/償却金: - / - / -
所在地: 宝塚市平井
築年月:
                新築
2025年10月
              
ポイント
《初期費用減額プラン有物件》
資料請求などはこちら
TEL: 06-6531-3215
お問い合わせ番号: hphp0000346857
                
              
スタッフからのコメント
2025年11月完成予定新築物件。設備充実。嬉しいインターネット無料。新生活が幸せであふれるようなご提案を心がけております。初期費用クレジット決済可能物件。お部屋探しのことなら住むーズ 堀江店まで。
| 特徴 | 防犯カメラ,オートロック,陽当たり良好,眺望良好,通風良好,保証人(不要),カード決済可(入居時費用) | ||
|---|---|---|---|
| 設備 | エレベーター,24時間ゴミ出し可,敷地内ゴミ置き場,宅配BOX,ガスコンロ設置済,2口コンロ,バス・トイレ別,バス有,浴室乾燥,脱衣所,シャワー,トイレ有,温水洗浄便座,洗面所独立,洗面化粧台,シャワー付洗面台,エアコン,BS,CS,CATV,高速ネット対応,CATVインターネット,ネット使用料不要,TVインターホン,フローリング,室内洗濯機置場,クローゼット,ウォークインクローゼット,シューズボックス,ガス(都市ガス),下水(公共下水),水道(公営),電気 | ||
| 光ファイバー | エレベーター | 1基 | |
| 天井高 | 空調 | 1基 | |
| 駐車場 | 駐輪場:有 バイク置き場:有 | ||
| 周辺施設 | 
                コンビニ:ローソン 宝塚平井店 153m 公園:平井公園 153m レストラン:ALOHA CAFE Pineapple 宝塚店 153m コンビニ:セブン-イレブン 宝塚山本東3丁目店 455m スーパー:コープ 山本 703m レストラン:つばめ軽食店 768m スーパー:関西スーパー 荒牧店 1610m 郵便局:川西花屋敷郵便局 1381m ドラッグストア:キリン堂 宝塚東店 2420m 総合病院:伊丹天神川病院 2688m  | 
            ||
| 物件名 | プレジオ宝塚ASIAN | ||
|---|---|---|---|
| 物件所在地 | 兵庫県宝塚市平井6丁目 | ||
| 交通機関 | 阪急宝塚線 山本(兵庫)駅 徒歩7分 | ||
| 専有面積 | 78.4㎡ | ||
| 所在階/地上階数 | 3 / 7 | 部屋向き | |
| 建物構造 | 鉄筋コンクリート | 築年月 | 
                新築 2025年10月  | 
            
| 賃料 | 21.2万円 | 管理費等 | 25000円 | 
| 保証金 | - | 更新料 | 無 | 
| 積増し敷金 | - | 積増し理由 | 無 | 
| その他一時金 | PREGIO CLUB24:20,000円 | その他費用 | |
| 損害保険 | 有 料金:26000円 損保期間:24ヶ月 | ||
| 契約形態 | 普通借家契約 | 期間 | 契約期間:2年 | 
| 保証会社 | 必須 エポス 初回保証料:総賃料の20% | 保証人代行 | 必須 | 
| 法人契約 | 可 | ||
| 現況 | 未完成 | 入居時期 | 期日指定 2025年11月上旬 | 
| 入居条件 | ペット(相談),事務所(相談),楽器等の使用(不可),学生(可),性別(不問),子供(相談),単身(可),二人(相談),高齢者(相談),法人(可),飲食店(不可),ルームシェア(相談) | ||
| IT重説 | 可 | ||
| 取引態様 | 仲介元付(一般) | 自社管理番号 | hphp0000346857 | 
|---|---|---|---|
| 情報更新日 | 2025年10月30日 | 次回更新予定日 | 2025年11月13日 | 
| 不動産会社コード | 2105765 | 物件管理コード | 1111846758050000353764 | 
資料請求などはこちら
TEL: 06-6531-3215
お問い合わせ番号: hphp0000346857
所在地 :
            大阪府大阪市西区北堀江1丁目2-17四ツ橋川崎ビル6F-EAST
            
 TEL :
            06-6531-3215
            
 免許番号 :
            大阪府知事(2)第58352号
            
 加盟団体 :
            大阪府宅地建物取引業協会