大阪市内のお部屋探しは住むーズにおまかせ下さい!
■ご希望の市区郡をお選びください。(複数選択が可能です。)
■ご希望の条件をお選びください。(複数選択が可能です。)
物件を並べ替え
昇順
降順
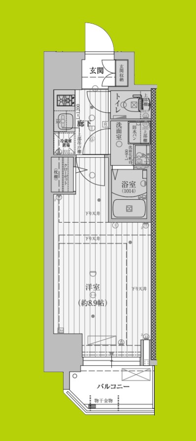
マンション
1K
26.25㎡
7.37万円
( 6300円)
交通: 阪急京都線 上新庄駅 徒歩3分
敷金/礼金: -/ 1ヶ月
保証金/敷引/償却金: -/ -/ -
所在地: 大阪市東淀川区小松
築年月: 新築2025年10月
ポイント
《初期費用減額プラン有・保証人不要物件》
ファーストフィオーレ北大阪リアン の詳細ページ
7.42万円
7.27万円
7.22万円
7.17万円
問い合わせ
(234坪)
ファーストフィオーレ北大阪リアン の 詳細ページ